
MIL-B-49030A
4.6.1.3.1 Sampling plan. Group B1 inspection shall be on an inspection lot basis. Sample size shall be selected
as indicated in table V. If there are one or more failures, the inspection lot shall be considered to have failed.
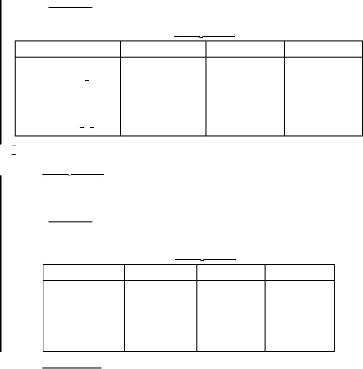
TABLE V. Group B1 inspection.
Examination and test
Requirement
Test method
Sample
paragraph
paragraph
size
Dimensions and weight
13
Insulation resistance 1/
13
Vibration
5
Mechanical shock
5
Battery voltage
5
and 4.7.8.2
Visual-mechanical (external)
5
Electrolyte leakage 1/ 2/
13
1/ When applicable.
2/ Batteries shall be selected at random during the first third of the monthly production lot.
4.6.1.4 Group B2 inspection. This inspection, including sampling, shall consist of the examinations and tests
specified in table VI in the order shown. Group B2 inspection shall be performed on separate samples for each
sub-group and shall normally be performed on inspection lots that have passed group A inspection and on samples
selected from units that have been subjected to and met the group A inspection (see 4.6.1.1).
4.6.1.4.1 Sampling plan. Group B2 inspection shall be on an inspection lot basis. Samples shall be selected as
indicated in table Vl. If there are one or more failures, the inspection lot shall be considered to have failed.
TABLE VI. Group B2 inspection.
Examination and
Requirement
Test method
Sample
test
paragraph
paragraph
size
Subgroup I:
HT
13
Subgroup II
LT
13
4.6.1.5 Group C inspection. Group C inspection shall be performed at the Government inspection facility (see
6.1.e) on sample batteries subjected to the examination and tests specified in table VII. Shipment of the lot
represented by the sample batteries shall not be held up pending the results of group C inspection.
21
For Parts Inquires submit RFQ to Parts Hangar, Inc.
© Copyright 2015 Integrated Publishing, Inc.
A Service Disabled Veteran Owned Small Business